1991 zeigten KSV Krüger Schuberth Vandreike auf der Biennale in Venedig den Entwurf für ein neues Parlament, des nach der deutschen Wiedervereinigung neu gegründeten Bundeslandes Brandenburg, auf dem Standort des Potsdamer Stadtschlosses. Nach mehrjähriger politischer Debatte erfolgte 1994 der Grundsatzbeschluss zur Wiedervereinigung der 1990 gebildeten Bundesländer Berlin und Brandenburg. Potsdam wurde zum Sitz des gemeinsamen Landtages von Berlin-Brandenburg gewählt. Auf Grundlage dieser Parlamentsbeschlüsse erfolgte die Prüfung von Standorten für den neuen Landtag in Potsdam. Das Areal des im 2. Weltkrieg zerstörten und später abgetragenen Stadtschlosses am Markt in Potsdam wurde nicht in die Standortuntersuchung einbezogen, da der politische Meinungsbildungsprozess zur Entwicklung dieses Areals noch nicht abgeschlossen war.
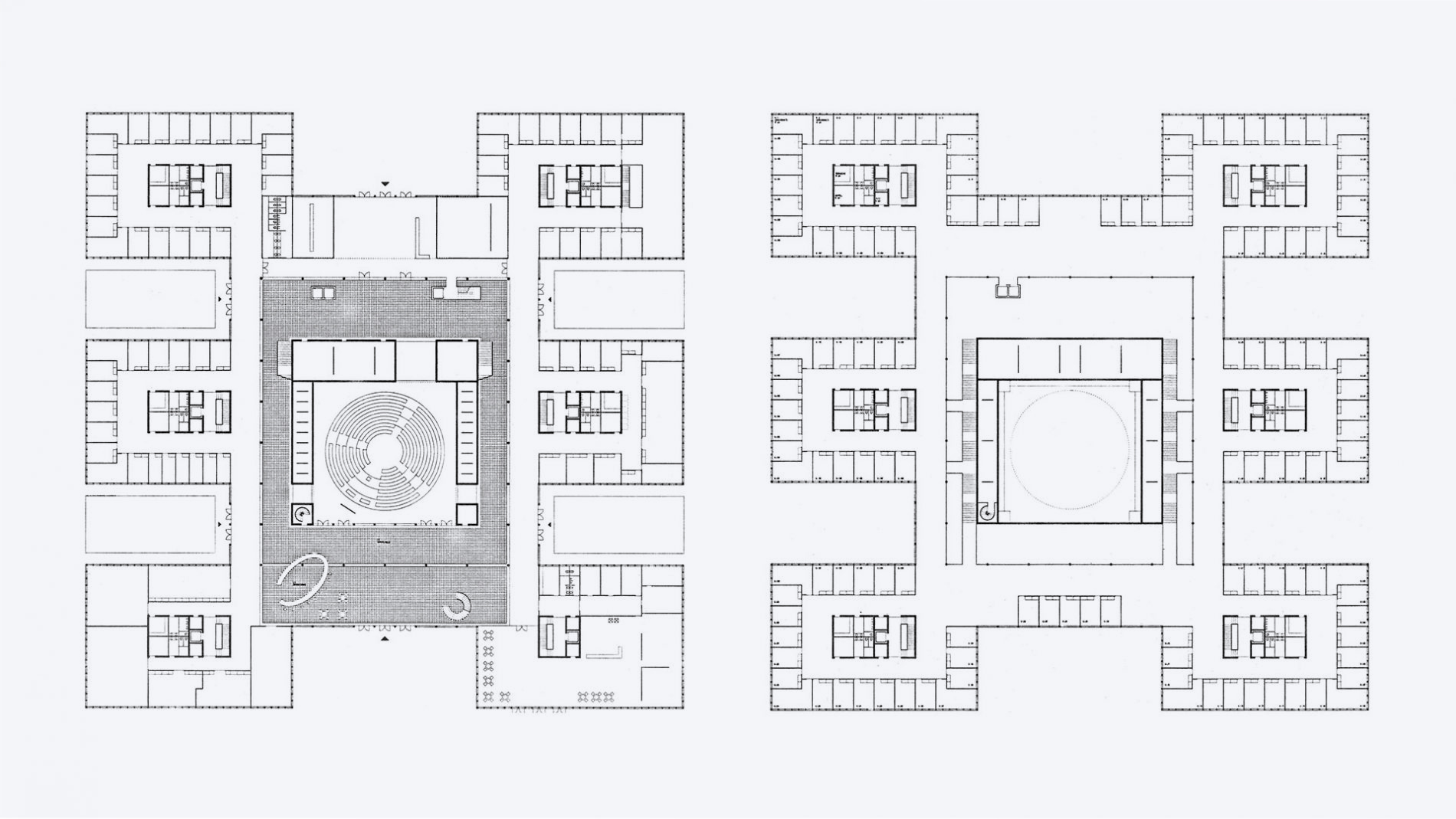
Der 1995 ausgelobte Architekturwettbewerb wies als Standort des neuen Landtages von Berlin-Brandenburg ein Grundstück an der Havel in der Potsdamer Speicherstadt mit Blick auf die am anderen Flussufer liegende Altstadt von Potsdam aus. Der mit dem ersten Preis ausgezeichnete Entwurf stellt den Parlamentssaal ins Zentrum des Ensembles. Fraktionssäle, Abgeordnetenbüros und Landtagsverwaltung sind in sechs Bürogebäuden untergebracht, welche den Blick in die Landschaft der Havelaue ermöglichen und zugleich den Plenarsaal freistellen.
In einer Volksabstimmung lehnte die Bevölkerung Brandenburgs 1996 die Fusion mit Berlin zu einem Bundesland mehrheitlich ab. Die Planung wurde daraufhin eingestellt. 2014 wurde der Neubau des Landtages von Brandenburg auf dem Areal des Potsdamer Stadtschlosses in den rekonstruierten Fassaden des Schlosses eröffnet.








